Przepompownie ścieków
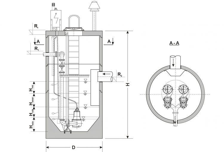
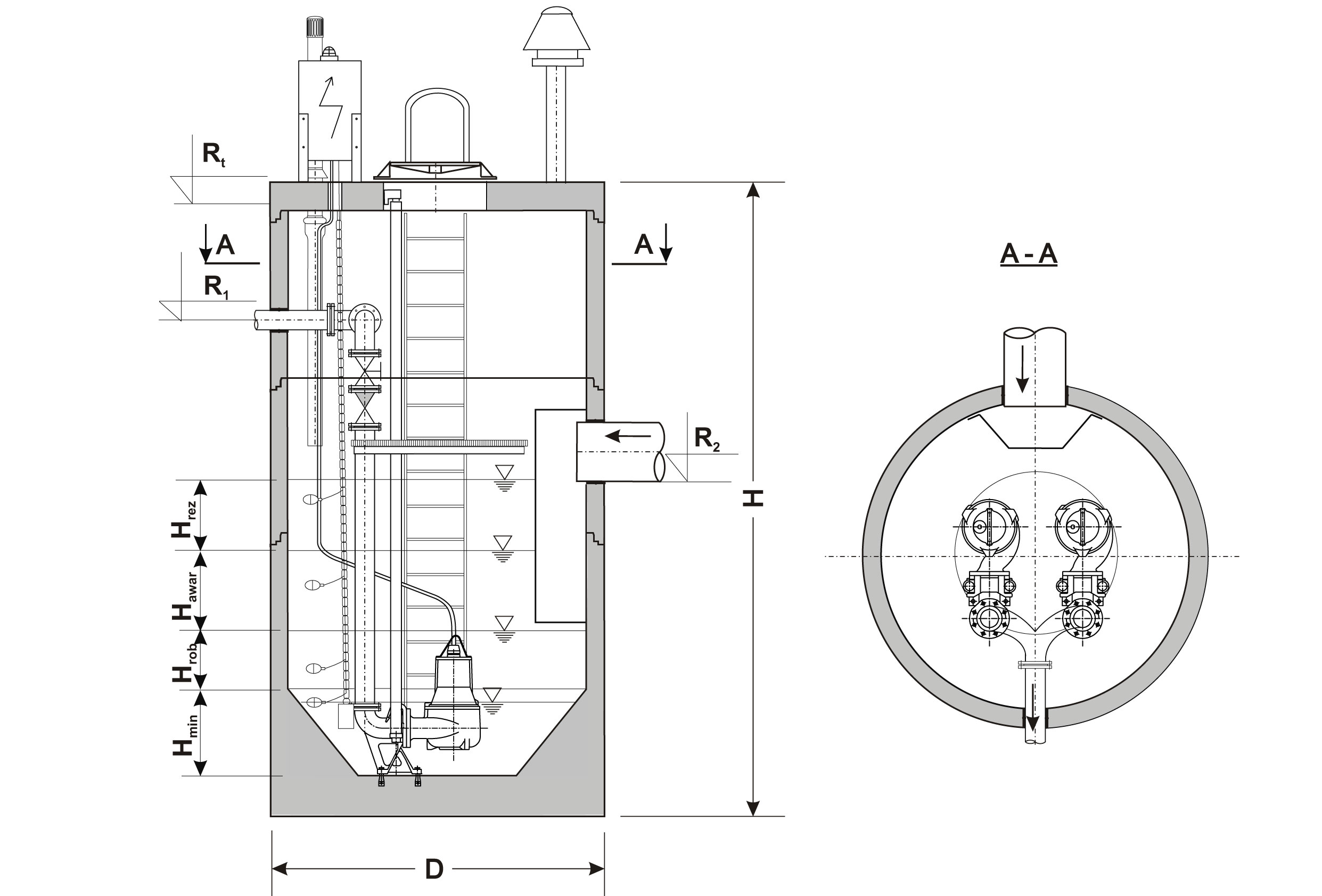
Zbiornikowe Przepompownie Ścieków ECOPOMP służą do tłoczenia ścieków sanitarnych, deszczowych oraz przemysłowych. Wyposażone są w pojedyncze, podwójne lub potrójne układy pompowe, pracujące naprzemiennie lub jednocześnie. Konstrukcję pompowni stanowi monolityczny zbiornik żelbetowy, którego wysokość jest regulowana poprzez nadstawki.
Każda przepompownia standardowo wyposażona jest we właz, drabinkę zejściową, pomost obsługowy dla zasuw i zaworów zwrotnych, rurę nawiewno - wywiewną, zatapialne pompy ściekowe. Orurowanie pompowni wykonujemy z PE lub PVC, opcjonalnie ze stali nierdzewnej.
Sterowanie pracą odbywa się poprzez sygnalizatory poziomu cieczy (pływaki, sonda hydrostatyczna) oraz rozdzielkę zasilająco-sterującą wyposażoną w wyłącznik główny, przełącznik pracy pomp (automat./wyłączone/ręcznie), wyłącznik na obwodzie pomp, przełącznik kolejności pracy pomp - automatyczny z przejęciem obowiązku załączania tylko jednej pompy w chwili awarii drugiej. Każda przepompownia posiada zabezpieczenia m.in.: przed suchobiegiem, przeciwzwarciowe, przed zanikiem lub długotrwałym przysiadem napięcia, wewnętrzne zabezpieczenia termiczne i przeciwwilgociowe pomp, przeciwporażeniowe. Systemy sygnalizacji polegają na sygnalizacji pracy pomp, sygnalizacji obecności napięcia, przekroczenia przez ciecz stanu alarmowego oraz licznika godzin pracy pomp.




