Separator koalescencyjny zintegrowany z osadnikiem i kanałem odciążającym typ ECO-K 3/30-0,6...10/100-2,0; ECO-K 3/15-0,6...10/50-2,0
Aprobata Techniczna Instytutu Ochrony Środowiska w Warszawie nr AT/2012-08-0219-2/A2
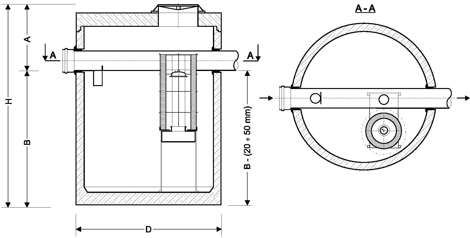
- W przypadku rzeczywistego zagłębienia kanalizacji większego od wartości “A” należy nadbudować separator nadstawkami regulacyjnymi
- Wszystkie urządzenia w wykonaniu najazdowym z włazami Ø600 w klasach obciążenia C250 lub D400.
| ECO-K | 3/30-0,6 | 3/30-1,5 | 3/30-3,0 | 6/60-0,6 | 6/60-1,5 | 6/60-3,0 | 10/100-1,3 | 10/100-2,0 | |
|---|---|---|---|---|---|---|---|---|---|
| Przepust. nominalna | [l/s] | 3 | 3 | 3 | 6 | 6 | 6 | 10 | 10 |
| Przepust. maksymalna | [l/s] | 30 | 30 | 30 | 60 | 60 | 60 | 100 | 100 |
| Pojemność osadnika | [l] | 600 | 1500 | 3000 | 600 | 1500 | 3000 | 1300 | 2000 |
| Średnica D | [mm] | 1240 | 1500 | 1800 | 1500 | 1500 | 1800 | 1500 | 1800 |
| Wysokość H | [mm] | 1800 | 2400 | 2900 | 1800 | 2400 | 2900 | 2400 | 2400 |
| Wysokość A | [mm] | 650 | 700 | 700 | 850 | 850 | 850 | 950 | 950 |
| Dopływ/Odpływ max. | [mm] | 250 | 250 | 250 | 400 | 400 | 400 | 500 | 500 |
| Zagłębienie dna zbiornika B | [mm] | 1150 | 1700 | 2200 | 950 | 1550 | 2050 | 1450 | 1450 |
| Ilość zatrzymanego oleju | [l] | 65 | 95 | 170 | 150 | 155 | 260 | 155 | 255 |
| Masa jednostkowa | [kg] | 1800 | 3600 | 5700 | 2700 | 3600 | 5700 | 3600 | 4800 |
| Masa całkowita | [kg] | 2200 | 4400 | 6900 | 3500 | 4400 | 6900 | 4400 | 6000 |
| ECO-K | 3/15-0,6 | 3/15-1,5 | 3/15-3,0 | 6/30-0,6 | 6/30-1,5 | 6/30-3,0 | 10/50-1,3 | 10/50-2,0 | |
|---|---|---|---|---|---|---|---|---|---|
| Przepust. nominalna | [l/s] | 3 | 3 | 3 | 6 | 6 | 6 | 10 | 10 |
| Przepust. maksymalna | [l/s] | 15 | 15 | 15 | 30 | 30 | 30 | 50 | 50 |
| Pojemność osadnika | [l] | 600 | 1500 | 3000 | 600 | 1500 | 3000 | 1300 | 2000 |
| Średnica D | [mm] | 1240 | 1500 | 1800 | 1500 | 1500 | 1800 | 1500 | 1800 |
| Wysokość H | [mm] | 1800 | 2400 | 2900 | 1800 | 2400 | 2900 | 2400 | 2400 |
| Wysokość A | [mm] | 600 | 650 | 650 | 765 | 765 | 765 | 850 | 850 |
| Dopływ/Odpływ max. | [mm] | 200 | 200 | 200 | 315 | 315 | 315 | 400 | 400 |
| Zagłębienie dna zbiornika B | [mm] | 1200 | 1700 | 2250 | 1035 | 1635 | 2135 | 1550 | 1550 |
| Ilość zatrzymanego oleju | [l] | 65 | 95 | 170 | 150 | 135 | 230 | 155 | 255 |
| Masa jednostkowa | [kg] | 1800 | 3600 | 5700 | 2700 | 3600 | 5700 | 3600 | 4800 |
| Masa całkowita | [kg] | 2200 | 4400 | 6900 | 3500 | 4400 | 6900 | 4400 | 6000 |
Przykładowy sposób oznaczania separatorów ECO-K
ECO-K – typoszereg
3 – przepływ nominalny [l/s]
30 – przepływ nominalny [l/s]
/ 0,6 – pojemność osadnika [m3]