Osadnik zawiesiny mineralnej typ OZM-G 16...25
Aprobata Techniczna Instytutu Ochrony Środowiska w Warszawie nr AT/2012-08-0357
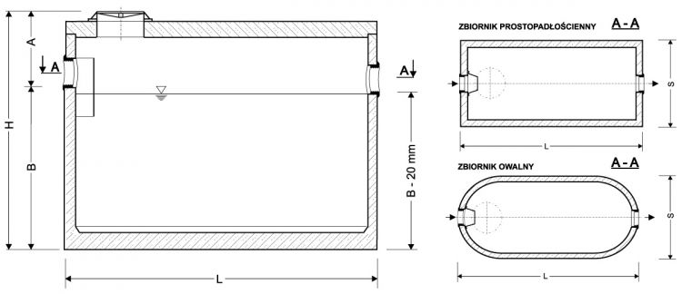
- W przypadku rzeczywistego zagłębienia kanalizacji większego od wartości “A” należy nadbudować separator nadstawkami regulacyjnymi
- Wszystkie urządzenia w wykonaniu najazdowym z włazami Ø600 w klasach obciążenia C250 lub D400.
| OZM-G | 16 | 16 Ow | 21 | 21 Ow | 25 | 25 Ow | |
|---|---|---|---|---|---|---|---|
| Pojemność całkowita | [l] | 16610 | 15460 | 22740 | 20740 | 26500 | 24960 |
| Pojemność użyteczna | [l] | 13000 | 12100 | 17800 | 16240 | 19650 | 18500 |
| Długość L | [mm] | 3660 | 3700 | 4900 | 4700 | 5660 | 5500 |
| Szerokość S | [mm] | 2360 | 2500 | 2360 | 2500 | 2360 | 2500 |
| Wysokość H | [mm] | 2920 | 2950 | 2920 | 2950 | 2920 | 2950 |
| Wysokość A | [mm] | 820 | 850 | 820 | 850 | 920 | 950 |
| Dopływ/Odpływ max. | [mm] | 400 | 400 | 400 | 400 | 500 | 500 |
| Zagłębienie dna zbiornika B | [mm] | 2100 | 2100 | 2100 | 2100 | 2000 | 2000 |
| Masa jednostkowa | [kg] | 14000 | 12200 | 17500 | 15000 | 20000 | 17200 |
| Masa całkowita | [kg] | 18300 | 16500 | 23200 | 20500 | 26600 | 23600 |
Przykładowy sposób oznaczania osadnika typu OZM-G
OZM-G – typoszereg
16 –pojemność nominalna [m3]
0w – zbiornik owalny