Separator tłuszczów roślinnych i zwierzęcych ze zintegrowanym osadnikiem typ STC NS 25/6000

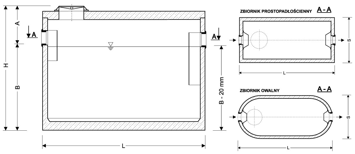
  • W przypadku rzeczywistego zagłębienia kanalizacji większego od wartości “A” należy nadbudować separator nadstawkami regulacyjnymi
  • Wszystkie urządzenia w wykonaniu najazdowym z włazami Ø600 w klasach obciążenia C250 lub D400.
STC   25/6000 25/6000 Ow
Długość L [mm] 3660 3700
Szerokość S [mm] 2360 2500
Wysokość H [mm] 2800 2950
Wysokość A [mm] 700 700
Dopływ/Odpływ max. [mm] 250 250
Zagłębienie dna zbiornika B [mm] 2100 2250
Pojemność osadnika [l] 5800 5900
Pojemność tłuszczów [l] 1000 1000
Masa jednostkowa [kg] 14000 12200
Masa całkowita [kg] 18300 16500

Przykładowy sposób oznaczania separatorów ECO I

STC – typoszereg
25 – wielkość nominalna
/600 – pojemność osadnika
Ow – zbiornik owalny

Ważne! Nasza strona internetowa stosuje pliki cookies, tzw. ciasteczka. Kliknij "Zgadzam się", aby niniejsza informacja nie pojawiała się. Więcej...