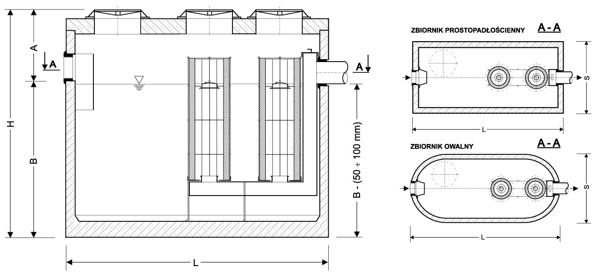
Separator koalescencyjny substancji ropopochodnych ECO I NG 175...300
Aprobata Techniczna Instytutu Ochrony Środowiska w Warszawie nr AT/2012-08-0196-2/A3
- W przypadku rzeczywistego zagłębienia kanalizacji większego od wartości “A” należy nadbudować separator nadstawkami regulacyjnymi
- Wszystkie urządzenia w wykonaniu najazdowym z włazami Ø600 w klasach obciążenia C250 lub D400.
| ECO I NG | 175 | 175 Ow | 200 | 200 Ow | 250 | 250 Ow | 300 | 300 Ow | 350 | 350 Ow | |
|---|---|---|---|---|---|---|---|---|---|---|---|
| Przepustowość | [l/s] | 175 | 175 | 200 | 200 | 250 | 250 | 300 | 300 | 350 | 350 |
| Długość L | [mm] | 3660 | 3700 | 4900 | 4700 | 4900 | 4700 | 5660 | 5500 | 5660 | 5500 |
| Szerokość S | [mm] | 2360 | 2500 | 2360 | 2500 | 2360 | 2500 | 2360 | 2500 | 2360 | 2500 |
| Wysokość H | [mm] | 2920 | 2950 | 2920 | 2950 | 2920 | 2950 | 2920 | 2950 | 2920 | 2950 |
| Wysokość A | [mm] | 970 | 1000 | 970 | 1000 | 970 | 1000 | 1070 | 1100 | 1070 | 1100 |
| Dopływ / Odpływ | [mm] | 500 | 500 | 500 | 500 | 600 | 600 | 600 | 600 | 600 | 600 |
| Zagłębienie dna zbiornika B | [mm] | 1950 | 1950 | 1950 | 1950 | 1850 | 1850 | 1850 | 1850 | 1850 | 1850 |
| Ilość zatrzymanego oleju | [l] | 3120 | 2900 | 5210 | 4750 | 6630 | 6050 | 8060 | 7590 | 10490 | 9880 |
| Masa jednostkowa | [kg] | 14000 | 12300 | 17500 | 15100 | 17500 | 15100 | 20000 | 17300 | 20000 | 17300 |
| Masa całkowita | [kg] | 18450 | 16700 | 23350 | 20700 | 23350 | 20700 | 26750 | 23800 | 26750 | 23800 |
Przykładowy sposób oznaczania separatorów ECO I
ECO I – typoszereg
NG – wielkość nominalna
175 – przepływ nominalny [l/s]
Ow – zbiornik owalny