Separator koalescencyjny zintegrowany z osadnikiem i kanałem odciążającym typ ECO-K 50/500-7,5...80/800-7,0; ECO-K 50/250-7,5...80/400-8,0
Aprobata Techniczna Instytutu Ochrony Środowiska w Warszawie nr AT/2012-08-0219-2/A2
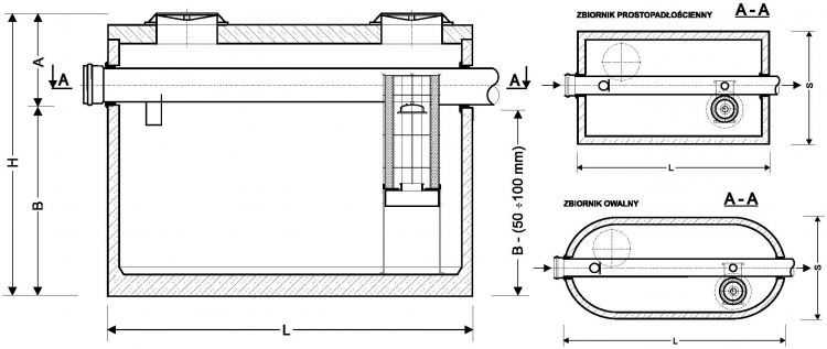
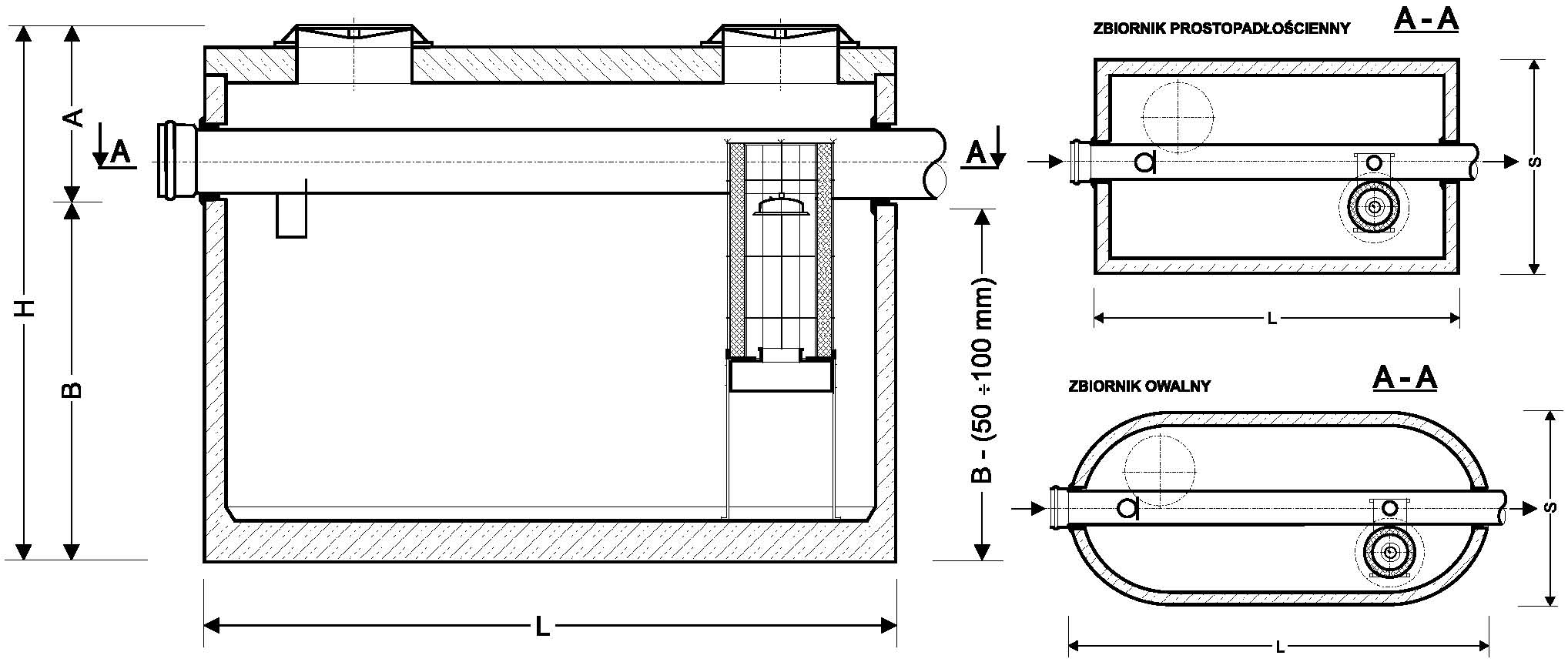
- W przypadku rzeczywistego zagłębienia kanalizacji większego od wartości “A” należy nadbudować separator nadstawkami regulacyjnymi
- Wszystkie urządzenia w wykonaniu najazdowym z włazami Ø600 w klasach obciążenia C250 lub D400.
| ECO-K | 50/500-7,5 | 50/500-7,5 Ow | 65/650-6,5 | 65/650-6,5 Ow | 80/800-7,0 | 80/800-7,0 Ow | |
|---|---|---|---|---|---|---|---|
| Przepust. nominalna | [l/s] | 50 | 50 | 65 | 65 | 80 | 80 |
| Przepust. maksymalna | [l/s] | 500 | 500 | 650 | 650 | 800 | 800 |
| Pojemność osadnika | [l] | 7500 | 7500 | 6500 | 6500 | 7000 | 7000 |
| Długość L | [mm] | 3660 | 3700 | 3660 | 3700 | 4900 | 4700 |
| Szerokość S | [mm] | 2360 | 2500 | 2360 | 2500 | 2360 | 2500 |
| Wysokość H | [mm] | 2920 | 2950 | 2920 | 2950 | 2920 | 2950 |
| Wysokość A | [mm] | 1270 | 1300 | 1470 | 1500 | 1470 | 1500 |
| Dopływ/Odpływ max. | [mm] | 800 | 800 | 1000 | 1000 | 1000 | 1000 |
| Zagłębienie dna zbiornika B | [mm] | 1650 | 1650 | 1450 | 1450 | 1450 | 1450 |
| Ilość zatrzymanego oleju | [l] | 1420 | 1320 | 1070 | 1000 | 3130 | 2850 |
| Masa jednostkowa | [kg] | 14550 | 12800 | 14550 | 12800 | 18050 | 15800 |
| Masa całkowita | [kg] | 18950 | 17300 | 18950 | 17300 | 23850 | 21500 |
| ECO-K | 50/250-7,5 | 50/250-7,5 Ow | 65/325-7,5 | 65/325-7,5 Ow | 80/400-8,0 | 80/400-8,0 Ow | |
|---|---|---|---|---|---|---|---|
| Przepust. nominalna | [l/s] | 50 | 50 | 65 | 65 | 80 | 80 |
| Przepust. maksymalna | [l/s] | 250 | 250 | 325 | 325 | 400 | 400 |
| Pojemność osadnika | [l] | 7500 | 7500 | 7500 | 7500 | 8000 | 8000 |
| Długość L | [mm] | 3660 | 3700 | 3660 | 3700 | 4900 | 4700 |
| Szerokość S | [mm] | 2360 | 2500 | 2360 | 2500 | 2360 | 2500 |
| Wysokość H | [mm] | 2920 | 2950 | 2920 | 2950 | 2920 | 2950 |
| Wysokość A | [mm] | 1170 | 1200 | 1170 | 1200 | 1270 | 1300 |
| Dopływ/Odpływ max. | [mm] | 700 | 700 | 700 | 700 | 800 | 800 |
| Zagłębienie dna zbiornika B | [mm] | 1750 | 1750 | 1750 | 1750 | 1650 | 1650 |
| Ilość zatrzymanego oleju | [l] | 1420 | 1965 | 2110 | 1965 | 4075 | 3715 |
| Masa jednostkowa | [kg] | 14550 | 12800 | 14550 | 12800 | 18050 | 15800 |
| Masa całkowita | [kg] | 18950 | 17300 | 18950 | 17300 | 23850 | 21500 |
Przykładowy sposób oznaczania separatorów ECO-K
ECO-K – typoszereg
50 – przepływ nominalny [l/s]
/500 – przepływ nominalny [l/s]
7,5 – pojemność osadnika [m3]